In diesen Farben wird unser Neubau erscheinen:
So ist die Planung für die Farbgestaltung der Flure: 
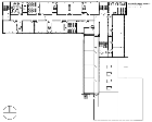
Dies ist der geplante Grundriss für das Erdgeschoss:
Dies ist die Planung für das 1. Obergeschoss: 

In diesen Farben wird unser Neubau erscheinen:
So ist die Planung für die Farbgestaltung der Flure: 
Dies ist der geplante Grundriss für das Erdgeschoss:
Dies ist die Planung für das 1. Obergeschoss: 
